Bouzarc Residence
Description
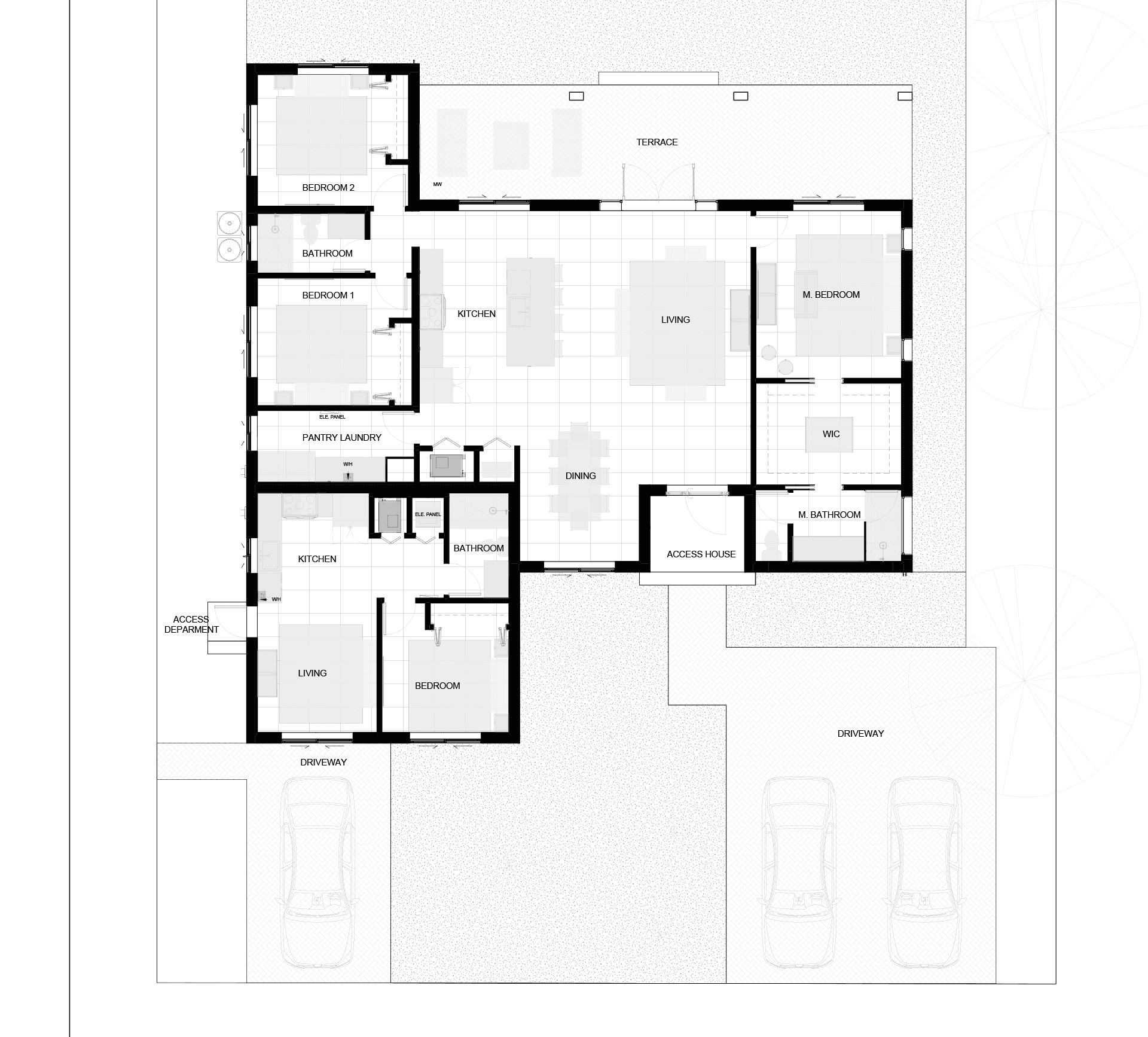
A 2,000–2,200 SF new construction residence featuring a pitched roof and a well-balanced layout with four bedrooms and three bathrooms. The project includes architectural planning, coordination with site survey and elevation data, and a landscape design developed in accordance with local code requirements.



Keep Explorig



